City Museum and gallery Neo Rauch


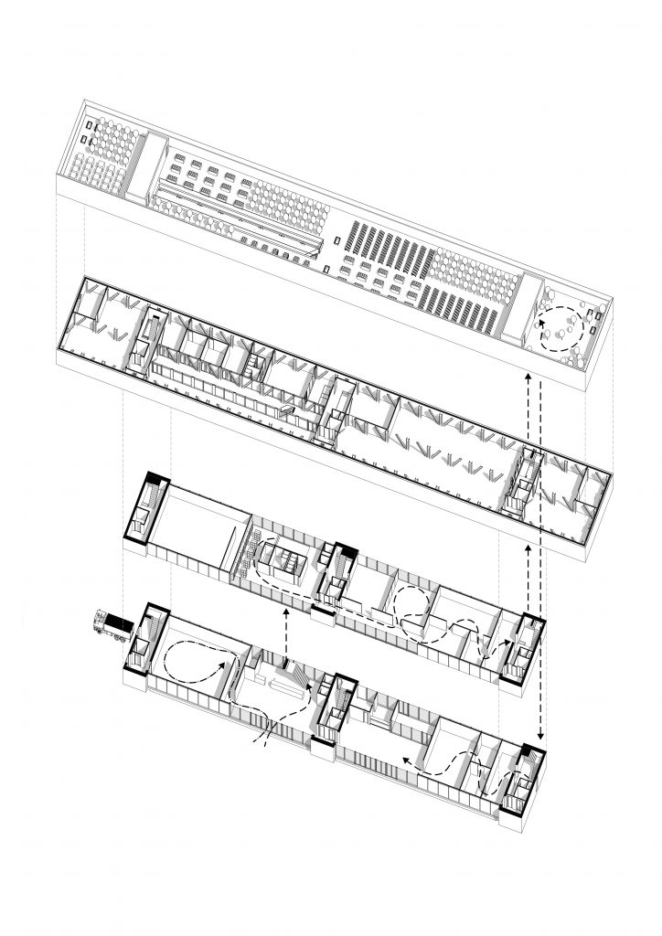
The design for the Urban Museum and Gallery Neo Rauch in Aschersleben is characterized by a raised depot level that appears to hover above the site. Below the floating block, there is flexible public space integrated into the urban fabric, while above, a large new green space is created on the roof. The elevated floor appears as an abstract, sculptural block in the urban landscape, giving the museum its distinctive and striking shape. At the same time, the building exudes a sense of calm and mystery. By raising the depot facade and vertically dividing the lower facade, only two of the four levels behind it are visible from the outside.
On the west side of the museum, a new city promenade is created, leading visitors to the entrance while also inviting them to linger. The southern projection provides a covered outdoor space that can be used for outdoor events and café seating. Its proximity to the city center creates a new vibrant space in the heart of the city. Below the northern projection is the delivery area, from which objects are brought to the upper floor.
The public spaces extend over the first two floors. Aschersleben is the city where Neo Rauch grew up, establishing an important relationship between the artist and the city. Therefore, the generous, double-height exhibition space for Neo Rauch’s large-scale oil paintings holds a significant place in the building, adjacent to the museum’s exhibition space and directly connected to the foyer. For museum visitors, the tour includes a sculpture garden on the roof, hidden behind a tall parapet, creating a peaceful atmosphere. Below the garden are the depot areas, characterized by visible timber frame supports.
The structure resembles a bridge structure with a total length of approximately 125 meters. The individual steel beams are connected on-site to form a long beam and are shaped into a three-dimensional body using secondary beams, resting on three massive cores. Despite its massive exterior appearance, there is a lightweight structure behind it, providing high flexibility for the design of interior spaces. The large, intensively green roof area accommodates various uses such as herb gardens, urban farming, and a bee farm for employees, the community, and the café. Solar panels on the roof contribute to the building’s energy supply. Additionally, the raised floor already contributes to effective shading and thermal protection of the building.
The New Urban Museum and Gallery Neo Rauch presents itself as a sculptural and abstract building, creating a new provocative tension and harmony in the city of Aschersleben. The building fills a gap in the city center and creates a new high-quality space for the city’s residents and visitors from around the world.



interior



3D printed models



