
The Musée du Moyen-Âge is located in the 14th arrondissement of Paris, one of the most historically neighborhoods in the city. Its direct location at the Seine provides a representative setting for the museum of medieval art. Inspired by the geometrically shaped gardens of the city of Paris, the building appears in plan view as a clear geometric form, the square. This defines the corner of the block clearly while simultaneously contrasting with the organic structure surrounding it.
The exterior appearance of the museum is characterized by various types of natural stone and their grain patterns and colors, giving the building solidity and rawness. Based on a grid on the facade, a composition of geometric window areas and natural stone slabs gives the building a certain lightness and represents the fragmentary nature of medieval art hidden within its interior.
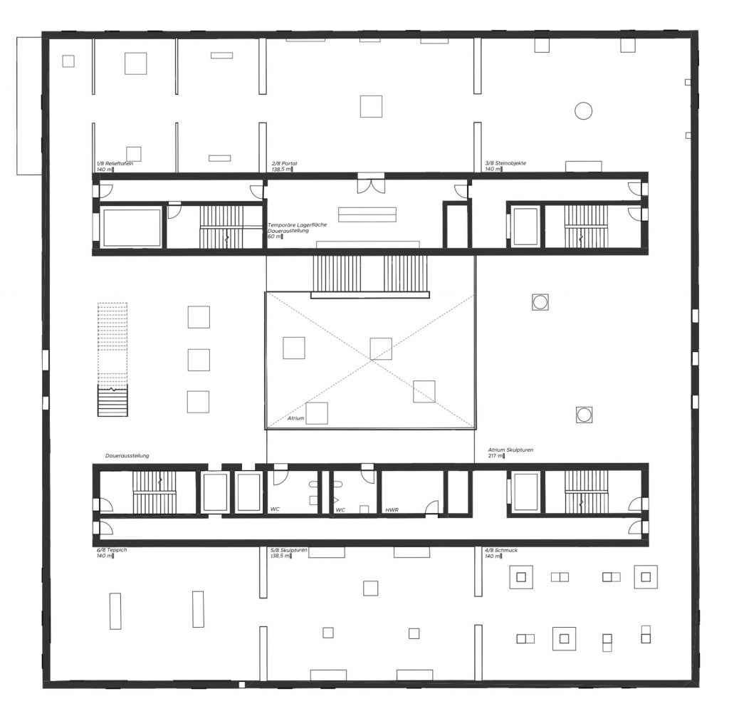
Inside the building, there is a interplay of levels and heights. All functions of the building (museum, library, workshops, administration, events) are connected through the central atrium. This also serves as part of the museum tour and experience.
Due to the principle of the structure, large, flexible areas are created that offer potential for both a flexible exhibition concept and possible repurposing of the building in the future.
The Musée du Moyen-Âge is a metaphor for the fragmentary and uncertain nature of medieval art. Visitors experience the building as a story full of tension, beginning in an urban context and extending into the uncertainty of the interior space.


interior and floorplans



3D printed model

